Ficha
Año del proyecto: 2025
Finalización: 2026
Ubicación: Sevilla
Superficie de intervención: 60m²
Equipo
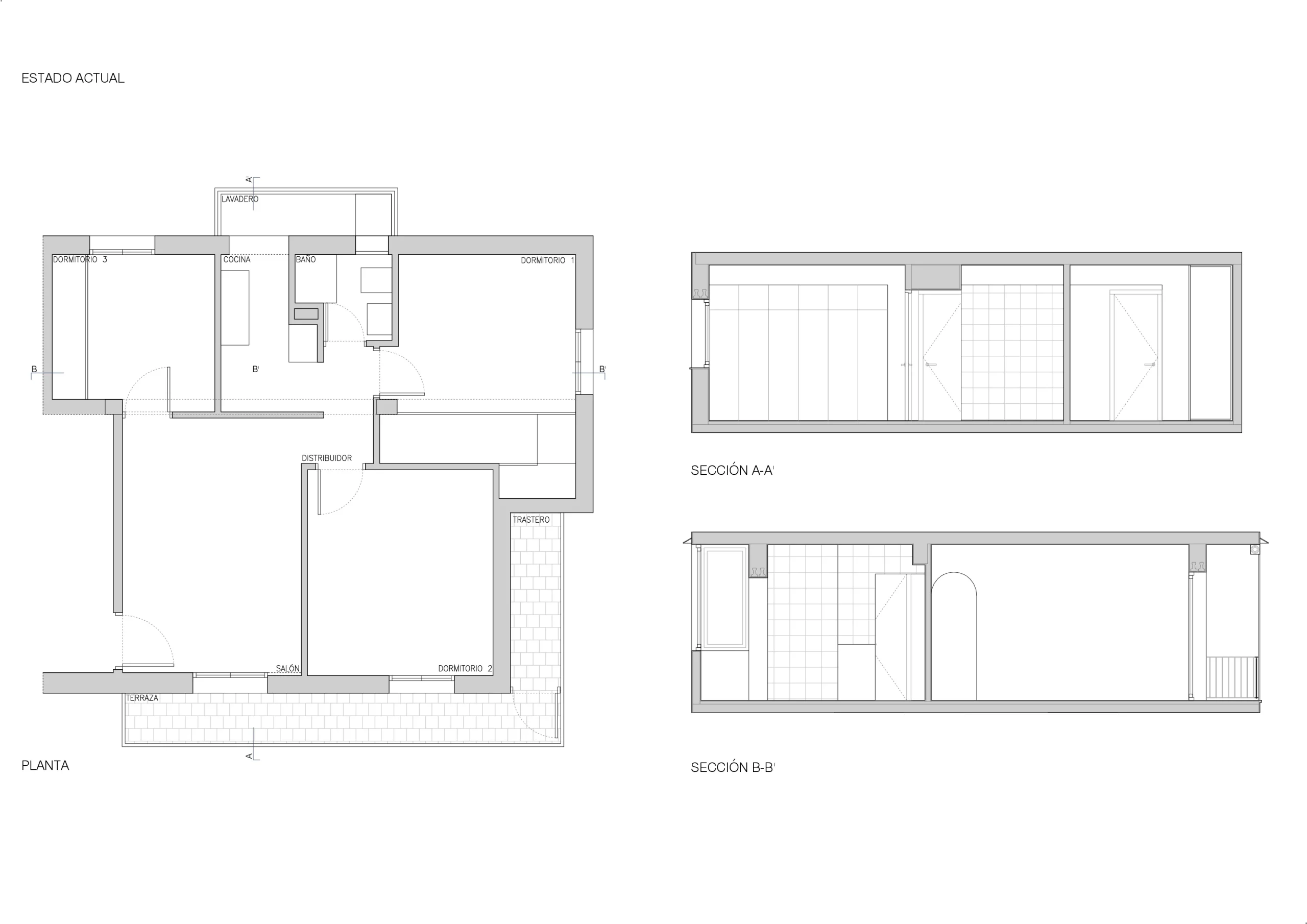
La intervención se sitúa en una vivienda construida en 1963 dentro de un polígono residencial característico de la época, marcada por una compartimentación rígida y espacios poco cualificados. El proyecto parte de una relectura integral de la planta, donde la demolición selectiva permite reorganizar el programa en torno a un espacio continuo de día. Se optimizan recorridos y superficies, reduciendo zonas de paso y potenciando la relación entre estancias, al tiempo que se mejora la entrada de luz natural y la ventilación cruzada.
El nuevo salón–cocina se configura como el corazón de la vivienda, un espacio fluido donde la arquitectura y el interiorismo se integran de manera precisa. La cocina se resuelve como un volumen lineal y contenido, con mobiliario continuo que oculta instalaciones y ordena visualmente el conjunto. Frente a ello, el área de estar se define mediante piezas ligeras y cálidas, generando un ambiente doméstico sereno. La elección de materiales —madera natural, tonos neutros y acabados blancos— refuerza la luminosidad y aporta una atmósfera contemporánea sin renunciar a la calidez.
El proyecto pone especial atención en la recuperación de la identidad constructiva original, manteniendo y enfatizando elementos existentes como vigas vistas, que dialogan con las nuevas soluciones. La iluminación, tanto natural como artificial, se trabaja como una herramienta fundamental para cualificar el espacio, subrayando texturas y profundidades. El resultado es una vivienda actualizada que responde a las formas de habitar contemporáneas, transformando una tipología obsoleta en un espacio flexible, luminoso y coherente.
