Ficha
Año del proyecto: 2020
Finalización: 2023
Ubicación: Carmona (Sevilla)
Superficie de intervención: 163m²
Equipo
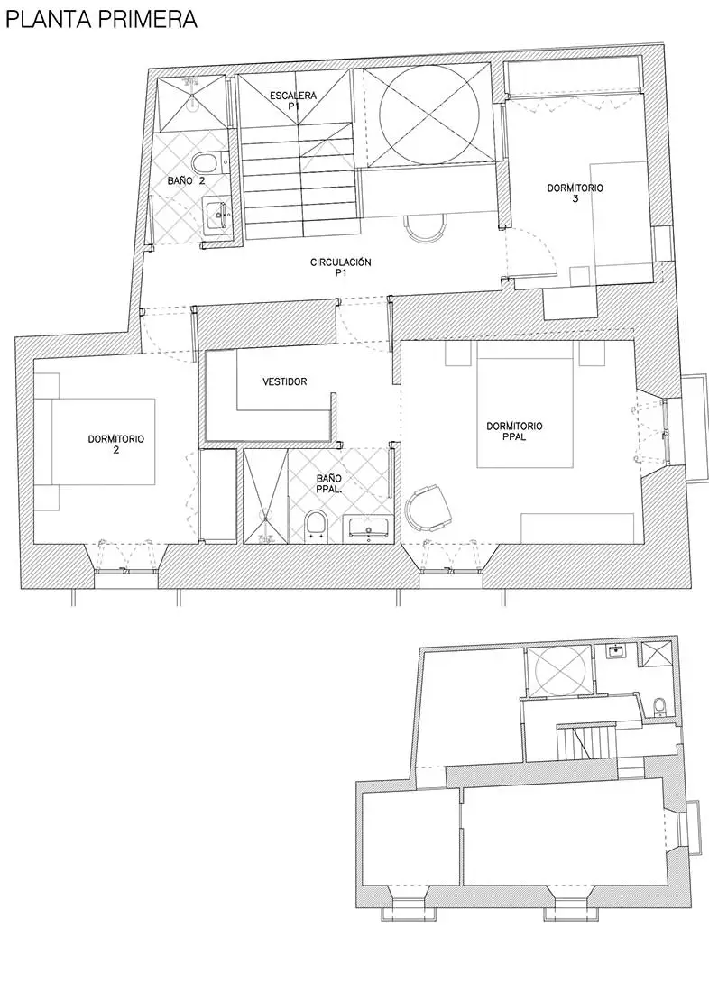
Rehabilitación de vivienda donde el mayor peso de la actuación recae sobre la segunda crujía, de mucho menos valor patrimonial, manteniéndose en primera crujía casi intacto el sistema estructural, de compartimentaciones y huecos.
En la crujía interior para dar cabida a las necesidades habitacionales actuales se ejecuta una reforma morfológica de gran calado. La actuación de mayor envergadura consiste en llevar la escalera al fondo del inmueble, junto con los baños, consiguiéndose así que la zona ciega de la casa albergue los usos de menores necesidades de iluminación natural. Se libera la zona central, que junto a la apertura de un hueco en el muro en la zona del salón, permite crear un espacio fluido mucho más contemporáneo en torno al que se distribuyen las circulaciones de la vivienda, sin dejar de lado las características tipológicas originales del edificio.
La forma del patio permanece intacta con la actuación, pero con el añadido de que la galería de primera planta y la escalera se abren a él. El patio trasero y pequeño que tenía poca utilidad se pone en valor, siendo una de las piezas centrales de la casa en torno al que aparecen el acceso a la vivienda, la escalera y el pasillo de planta primera que ahora se convierte en galería.
