Ficha
Año del proyecto: 2021
Finalización: 2024
Ubicación: Alcalá de Guadaira (Sevilla)
Superficie de intervención: 1.060m²
Equipo
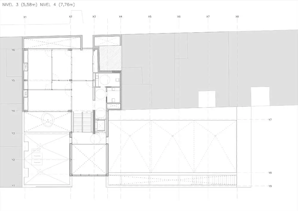
El proyecto planteado resuelve, por sus dimensiones y escala, la inserción de un equipamiento urbano en una franja-borde de un tejido residencial caracterizado por la edificación entre medianeras. Lo que ocurre al otro lado de esa franja es radicalmente distinto, el paisaje urbano es otro, la percepción de la ciudad es otra: medianeras vistas, traseras de las viviendas que asoman a la otra calle, tapias de solares aún sin edificar y verjas que encierran las instalaciones deportivas junto con la importante presencia de árboles de gran porte y el Centro de Salud construyen la escena urbana opuesta.
La condición de edificio pasante entre dos situaciones urbanas distintas se manifiesta en la lectura del pasaje transversal que recorre el Centro Cívico-cultural solventado así las diferencias de cotas existentes para que las alturas generadas en cada fachada se adecuen a las características propias del contexto urbano colindante. A Reyes Católicos se proyectan dos plantas que reconocen las características particulares de esa calle. A la avenida de Utrera, la fragmentación de volúmenes enfatiza la condición pública del edificio generando tres piezas que ayudan a entender la funcionalidad interior y favorecen el sellado de medianerías y la recualificación del espacio público exterior mediante la posición de la cafetería-plaza y el mural-grafiti propuesto.
El proyecto cubre las necesidades demandadas por el centro cívico-cultural de tal manera que su compartimentación, provocada por la posición central de las comunicaciones verticales, facilita la flexibilidad de usos diversos y colectivos ; donde la versatilidad entendida como la capacidad de adaptación (fácil y rápida) a diferentes eventos, reuniones o actos es lo que caracteriza el proyecto.
